Der Weichenstellhebel in 1:10


Weichen stellen wie beim Vorbild mit dem Weichenstellhebel in 1:10

Das Vorbild in Widdern

Der verschießbare Weichenstellhebel in 1:10

In den größeren Spurweiten habe ich das Stellen der Weichen mit einem Weichenstellhebel vor Ort schon oft bewundert. Aber in H0? der Weichenstellhebel ist viel zu klein und eine unbedachte Handhabung würde ihm den Garaus machen. Schon allein die durch die Weiche angetriebene Variante ist recht anfällig. Dafür steht aber der Stellhebel neben der Weiche immer wie es sich gehört. Also auf das vorbildliche Weichenstellen verzichten und einen Motorantrieb einbauen? Für die drei Weichen in Widdern ein extra Stellpult nur für die drei Weichen zu bauen schien mir nicht vernünftig. Einfache Schubstangen tun es da auch, oder man treibt diese mit einen schönen Modell eines Weichenstellhebels in 1:10 an. Leider wird sowas mal wieder nicht von der Industrie angeboten und man darf ein weiteres Mal selber tätig werden.

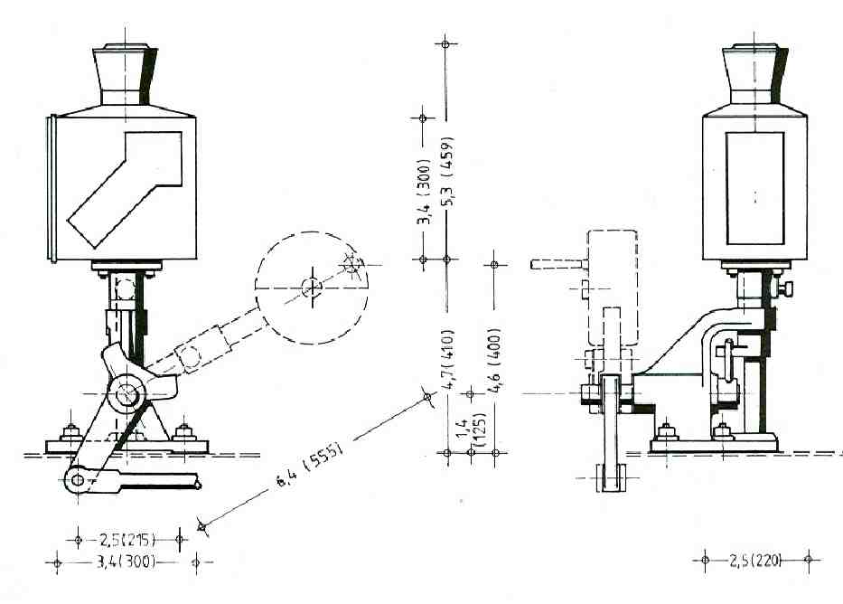
  Zeichnung mit Maßen 1:1 und 1:87

Eine Zeichnung eines solchen Weichenstellhebels fand sich auch, sogar schon mit auf H0 Maßstab umgerechneten Maßen. Auf dieser Basis ließ sich durch Vergrößerungen auif dem Kopierer schnell mal ein paar "Muster" in verschiedenen Größen machen um zu sehen welche gut zu handhaben und stabil genug in Kunststoff ab zu formen sind.

  Die Einzelteile in 1:10 gezeichnet

Als "idealer" Maßstab kristalisierte sich 1:10 heraus. Hiermit ist ein Stellweg von ca. 30mm zu realisieren und die kleinsten Teile schienen mir noch ausreichen stabil zu werden. Damit konnte ich dann mit meinem Zeichenprogramm die Einzelteile zeichnen.

  Der gezeichnete Stellbock in 1:10

Der Vorteil einer Zeichnung im PC ist das man die Teile gleich "zusammenbauen" kann. Da hat die Umsetzung in reale Modelle etwas mehr Zeit gekostet.

  Urmodelle

Die Einzelteile wurden nun in einzelne, einfachere Teile zerlegt die nacheinander hergestellt und zu den jeweiligen Bauteilen zusammengesetzt werden müssen. Ein beträchtlicher Aufwand, da die Teile aber jeweils nur einmal benötigt werden und von der Stabilität her nur das Abformen "überleben" müssen eine lösbare Aufgabe. Für eine erste Kontolle ob sich die Teile auch später montieren lassen wurden sie probehalber zusammen gebaut. Sonderlich haltbar sind die vielen kleinen Kunststoffklebeflächen nicht, zumal am Klebstoff gespart wurde um diesen nicht auch noch verschleifen zu müssen. Zum Abgießen wurden einige Löcher wieder mit Knetmasse verschlossen. Sie werden bei jedem Abguß aufgebohrt, das ist genauer als die Löcher mit ab zu formen.

  Basis

Die Basis und die Bodenplatte bilden im Vorbild ein Gußteil. Im Modell schien es mir sinnvoller beide Teile separat herzustellen und abzugießen. Das hält die Formen einfach und die Hinterschneidungen gering. Die Bodenplatte ist aus 2mm Kunststoffplatte ausgesägt und die Verstärkungen aus 0,5mm Plastikplatten aufgeklebt. Der Bock selber besteht aus einem gebogenen 2x10mm Messingstreifen in die zwei Drehteile eingelötet und mit der Feile angepasst werden. Die Rippe wurde aus einem weiteren Messingstreifen herausgesägt, mit der Feile angepasst und eingeklebt um nicht die Drehteile wieder zu lösen. Seitlich wurde der Körper zur Platte hin mit Plastikstreifen aufgebaut und die Lücken verspachtelt. Dieses Teil hat von allen am längsten gedauert.

  Hebel

Die Hebel entstanden allesamt aus Plastikplatten die mit Ausschnitten aus dünnem Plastik verstärkt wurden. Dadurch erhalten ihr plastisches Erscheinungsbild.

  Gewicht

Die Gwichte sind einfache Drehteile die mit je zwei Kreisabschnitten beklebt und gemeinsam überdreht wurden.

  Die Silikonformen

Der Satz Silikon Formen ist durch die Größe der Teile schon nicht mehr wirklich billig. Aber nur so lassen sich die Weichenstellhebel schnell und stabil in guter Qualität herstellen.

  Die Urmodelle und Abgüsse

Abgegossen werden die Teile in einem mit Aluminiumpulver und Glasfasern gefülltem Polyesterharz. Dies ist stabil, billig und greift auch auf Dauer die Silikonformen auch ohne Trennmittel nicht an.

  montierte Abgüsse

Die entgrateten und gebohrten Abgüssen lassen sich wie erwartet gut montieren und funktionieren klaglos.

  Auschlag rechts

Der Ausschlag ist am Ende doch größer als erwartet. Von ganz links nach ganz rechts können gut 25mm Stellweg realisiert werden. Das sollte auch für größere Spurweiten als H0 reichen.

  Ausschlag links

Hier nun der Ausschlag in die andere Richtung.

   aufgebauter Weichenantrieb

Die Drehantriebe der Weichen werden mittels Schubstange steckbar mir den Stellhebeln verbunden.

   aufgebauter Weichenantrieb

Der fertige Stellhebel wird auf einer Platte die auch das Schoß trägt montiert. Beides wird seitlich an die Module geschraubt und mit einer Steckverbindung mit dem Weichen Stellmechanismus und der Umpolschalter verbunden.