Der Der Anschluss der Fa. "Woehrle" im Modell


Das Anschlussgleis (Agl) der Fa. "Woehrle" bei Krautheim

Plan Anschluss der Fa.

Der Anschluss der Fa. "Woehrle" von Uwe Stehr

Die Strassenzufahrt der Fa. "Wöhrle Metallwarenfabrik GmbH & Co KG" liegt bei Streckenkilometer 33,7 und die Zufahrtsweiche des Anschlußgleises der Fa. Wöhrle liegt bei Streckenkilometer 33,946, beides kurz hinter Krautheim. Das Agl Woerhle wird als Sperrfahrt vom Bahnhof Krautheim aus bedient. Hier ist neben einer Weiche im Streckengleis noch einen 10m lange Absetzgrube vorhanden. Auf dem Werksgelände selber liegt 120m Regelspurgleis.

In der SbV ist, neben den schematischen Gleisplan, auch einiges zum Betriebsablauf des Agl (Anschlußgleis) Wörhle zu finden.

Agl Wörhle in der SbV

Über den Betriebsablauf des Agl (Anschlußgleis) Wörhle steht dort auszugsweise:

Agl Wörhle in der SbV

Daraus folgt für die Umsetzung im Modell:

Bewegung der Wagen auf dem Werk? Das kann man unterschiedlich umsetzen:

Dazu findet sich nix in der SbV, da habe ich noch eine offenen Baustelle.

Aber der Anschluß stellt doch mehr Aufgaben an den Bau als ich dachte, ich war von Grube und GS ausgegangen, nun muß noch Sperrschuh, Spill und Tor mit dazu. Allein wegen dem Spielwert halte ich das schon für sinnvoll.

Das Spill würde ich dem Verschieben von Hand (1:1 Hand) und Gabelstabler oder Lkw vorziehen, da es einfacher zu machen ist, ODER ich baue ein RC Auto für den Anschließer, z.B. so einen kleinen Unimog ...

Aber die SbV gibt noch mehr Informationen her.

Skize des Agl Wörhle aus der SbV

Die Zeichnung gibt die Situation gut wieder.

  • Die GS am Ende der Grube, aber VOR dem Tor.
  • Die Länge der Grube mit 10m (=115mm in H0).
  • Das Tor muß ein Schiebetor sein, denn ansonsten würden die Flügel die Strasse sperren oder durch den vor dem Tor stehenden Wagen schwenken.
  • Die GS ganz am Anfang der Grube.
  • Das Tor läßt sich auch mit einer Kurbel und einem Seilantrieb einfach antreiben.

    Die GS wie in Widdern und Olnhausen, mit Seilantrieb antreiben.

    Die Grube mechanisch antreiben.

    Die Antriebe kommen alle ohne Strom aus. Das kostet aber Länge. 115mm für die Grube, 16mm Tischlerplatte am Profil, das sind schon mind. 13cm. Für GS und Tor brauche ich mind. 5cm. Dann kann ich dort einen Wagen mit max. 15cm LüP abstellen. Hinter dem Tor bleiben dann noch max. 102cm - 18cm = 84cm => 73m in 1:1....

    Skize des Agl Wörhle aus der SbV

    ....die Zeichnung gibt hier 120m vor, davon die Hälfte unter freiem Himmel = 60m, das würde also gut passen, das wären 69cm in H0. Damit kann das Halbrelief sogar noch 4cm tief sein ohne das ich allzu sehr vom Vorbild abweiche und es passen leicht 2 Wagen hin.

    Der Anschluss der Fa. "Woehrle" im Modell

    Den Anschluß der Fa. Wöhrle auf Modulen umzusetzen ist nicht schwer, jedoch relativ groß. Allein das 120m lange Regelspurgleis auf dem Werksgelände ist im Modell 1,4m lang, die Zufahrt ebenfalls. So ergibt sich ein Arrangement vom 3m Länge das betrieblich außer einer Sperrfahrt wenig zu bieten hat.

    Verzichten wollen wir auf den Anschluß dennoch nicht, nur wird der Nachbau eingeschränkt und in Etappen erfolgen.

    erste Modulskizze

    In erster Linie wird für den Anschluss ein Abzweig benötigt. Dieser soll auf einem einfachen Streckenmodul erbaut werden, das auch als normale gerade Strecke verwendet werden kann. Um auch die prarallel zur Bahn verlaufende Landstrasse L-1026 (Klepsauerstrasse) nachbilden zu können wird für dieses Modul die "Hümmlinger" Endprofile (49kB als pdf-file) verwendet, die ein Straßenprofil aufweisen.

    Huemmling-Profil

    Die Klepsauerstrasse ist allerdings zweispurig und ohne Sommerweg, von daher wurde das Profil etwas angepasst. Anstelle der 5,2m schmalen Straßenplatten von Spörle (=50mm) werden hier 7,5m breite Strassen Straßenplatten (=86mm) verwendet. Die Lage auf der gleisabgewandten Seite bleibt gleich, so können diese Module ohne großen. optischen Bruch auch gemeinsam aufgebaut werden. Dieses Profil benutze ich bereits bei einem anderen H0e-Projekt, einer Ortsdurchfahrt.

    modifiziertes Hümmlinger Endprofil

    Der Anschluss selber entsteht ebenfalls auf einem einfachen Streckenmodulkasten und stellt die Absetzgrube dar und das regelspurige Werksgleis bis zum Lagergebäude. Das Gebäude selber wird den Abschluß des Moduls als Halbrelief bilden. Das Regelspurgleis wird ebenfalls bis zum Modulende verlegt um die Option einer späteren Erweiterung des Anschlusses um das Lagerhaus zu erhalten.

    Beide Module sind durch ein spezielles Adaptermodul und eine gebogenes Steckenmodul verbunden.

    erste Modulzeichnung

    Von einem anderen Projekt habe ich noch einen Modulkasten eines Adapters übrig. Zusammen mit einem baugleichen Adapter ergibt sich das Grundmaß eines Streckenmodulkastens. Der entstehenden Abzweig kann auch anderweitig eingesetzt werden. Somit kann der Bau zügig beginnen.

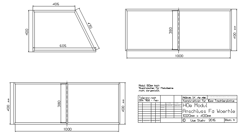
    Zeichnung der Module

    Die exakten Maße der einzelnen Module. Als Material kommt wieder 16mm Tischlerplatte zum Einsatz.

    Stellprobe der Module

    Die geraden Module hatte ich noch aus einer Aufbauaktion, das Kurven Modul stammt vom "Waldbogen", einer Gruppe aus drei Modulen, nur der Adapter ist neu zu bauen.

    Da der Adapter immer nur mit dem Straßenmodul aufzubauen ist, werden diese beiden Module mit Fixierbolzen versehen, dies erleichtert den Aufbau ungemein, ist aber nur für zusammenhängende Module zu empfehlen.

    Stellprobe der Module

    Das Bohren der Löcher muß unbedingt rechtwinkelig erfolgen, sonst klemmt das später furchtbar oder funktioniert gar nicht. Im Rohbau würde ich die beiden betroffenen Bretter gemeinsam auf der Standbohrmaschine bohren, hier muß ein Eigenbau Bohrständer die Handbohrmaschine führen.

    Löcher bohren

    Sind die Löcher gebohrt werden die Aluminiumhülsen eingeklebt. In einem Modul mitsamt der Stifte. Hier eingeschoben.

    eingebaute Zenrierstifte

    ...und ausgeschoben.

    eingebaute Zenrierstifte

    Innen werden die Bolzen wie ein Karabinerverschluß verriegelt, hier eingezogen.

    eingebaute Zenrierstifte

    ...und ausgeschoben.

    eingebaute Zenrierstifte

    Ansonsten wird der Adapter aufgebaut wie jedes andere Modul auch.

    gestrichener Adapter

    Um die Strassenmodule ohne Bruch im Gelände an andere Streckenmodule montieren zu können habe ich zwei kurze Adaptermodule mit 12cm Länge gebaut. Diese weisen je einen Bahnübergang und eine 90° Straßeneinmündung auf.

    Adaptermodul

    Die 90° Straßeneinmündung wird als Silikonform für den Abguß in Gips angeboten, die Strassenteile am Rand gieße ich allerdings in PU Harz, grau gefärbt, ab. Dies ist wesentlich fester und bröselt an den Rändern nicht. Im noch nicht aufgeklebten Zustand verklebe ich die Einmündung mit dem Straßenplattenabguß.

    Die 90° Straßeneinmündung

    Die fertige Straßeneinmündung wird nun auf dem Adapter zu den Rändern und dem Gleis ausgerichtet und verklebt.

    aufgeklebte Straßeneinmündung

    Auf diese Art entstehen zwischen den zusammengefügten Platten keine hässlichen Spalte, Lücken oder Stufen, die später die Herstellung dieser Stöße verraten.

    Übergang der Straßeneinmündung

    Auch die Stoßstellen innerhalb der Strassen auf dem Modul werden vorab verklebt, so sind auch hier hinterher die Stoßstellen kaum mehr zu sehen.

    Stoßstelle

    Das Gebäude der Fa. "Woehrle" im Modell

    Für die Hochbauten im Anschluss der Fa. "Woehrle" habe ich eine Zeichnung nach Bildern erstellt und die Einzelteile aus 2mm Acrylglas gelasert, die Rückseite und Seitenteile aus Stabilitätsgründen aus 6mm Acrylglas. Aufgrund der Größe des Gebäudes und der Größe des Moduls wird er erstmal nur als Halbrelief mit einer Tiefe von 40mm entstehen. Aufgestellt am Ende des Moduls stellt es auch gleich den Abschluss dar.

    Da ich nicht mit den Wagen in das Gebäude hineinfahren kann wird das große Einfahrtstor geschlossen dargestellt. Allerdings wird es als separates Einzelteil eingesetzt, mit der Option es später durch ein geätztes Tor mit Funktion zu ersetzen, wenn ich den Plan umsetze das Gebäude in vollständiger Größe nachzubilden. Hierfür fehlen mir jedoch ein Plan und Bilder.

    Von einem Bild aus den 70er Jahren ausgehend, habe ich die Dimensionen des Gebäudes in etwa ermittelt. Als Grundlage für die Berechnung habe ich angenommen das das Tor 4m breit und hoch ist. So ergeben sich eine Breite von von 32cm bei einer Firsthöhe von 9,2cm. Mit den wenigen auf dem Bid erkennbaren Details habe ich die Zeichnung als ersten Entwurf erstellt.

    erster Entwurf

    Die große Glasfront der Halle und die, wenn auch geringe, Tiefe von 40mm lassen den Einbau einer Beleuchtung nicht völlig sinnlos erscheinen, von daher habe ich das Modell mit einer festen Rückwand und ein paar warmweißen 5mm LED versehen.

    Seitenansicht

    Das Halbrelief wird also als breiter Lichtkasten aufgebaut und bekommt einen steckbaren Anschluß für die Stromversorgung. Dieser Anschluß wird im seitlichen Anbau untergebracht. Da dieser Anbau bis an das seitliche Modulgrenze reicht werden dort die entsprechenden Schalter eingebaut.

    Um vom 220V~ Netz unabhängig zu sein, wird in dem Anbau auch ein Batteriefach für einen Lithium Ionen Akku (Li-ion Akku 18650) mit 3,7V und ~3.000mAh untergebracht. Um das Gebäude auf dem Modul zu fixieren und auch andere Kleinverbraucher auf dem Modul schalten zu können, werden im Boden des Gebäudes drei 4mm Goldkontaktstifte eingebaut.

    Die Einzelteile des Gebäudes:

    Der Bau der Woehrle-Halle

    Weil ich auf die Schnelle kein 2mm ABS Material finden konnte habe ich auch diese Teile auch aus 2mm Acrylglas ausgelasert. Auf einem Haufen sieht es auch wie eine zerbrochene Glasscheibe.

    Einzelteile auf einem Haufen

    Eigentlich lassen sich alle Bauteile einfach zusammenstecken, nur die gemauerte Ecke des Anbaues macht da aufgrund der umlaufenden Mauerfugen eine Ausnahme. Hier werden die aneinander stoßenden Mauerteile mit einer Fase von mehr als 45° versehen. Mit Klebeband wird an der Vorderseite eine Art "Scharnier" geklebt und beide Teile mit einem Klebestreifen in einem 90° Winkel fixiert. Diese Klebestelle wird nun von innen mit einem 2K Kleber, in meinem Fall Stabilit Express, verklebt. Ein dünnflüssiger Klebstoff bietet sich hier nicht an, er würde zwar besser in den Spalt fließen, aber auf der Vorderseite auch in die eingelaserten Mauerfugen und das Klebeband. Das passiert mit Stabilit Express nicht.

    Seitenteile mit Stabilit Express geklebt

    So sieht diese Ecke nach dem Aushärten des Klebers und entfernen des Klebebandes aus.

    verklebte Seitenteile

    Die Ecke im Detail, die Fugen fluchten und laufen sauber um die Gebäudeecke. Es ist auch nirgends Klebstoff in die Fugen eingedrungen oder hat das Klebeband mit dem Gebäude verklebt.

    umlaufende Fugen

    Probehalber wird diese Gebäudeecke schon mal in die große Front der Halle gesteckt, das passt alles sehr gut.

    Probeaufbau

    An der Verbindung Bodenplatte und Dach zur seitlichen 6mm Wand habe ich einen Konstruktionsfehler gemacht. Die Verzahnung passt nicht ineinander, wo eine Lücke sein soll ist ein Zahn. Hier muß eine Zahnreihe weichen. Weil beim Ausbrechen aus der 2mm Platte ohnehin ein paar Zacken auf der Strecke geblieben wollte ich diese entfernen.

    Zacken falsch am Boden

    Hier die Situation am Dach, schöner Mist, das hätte nicht passieren müssen.

    Zacken falsch am Dach

    Um dennoch einen Anschlag und ausreichende Klebefläche zu haben wollte ich an die 6mm dicke Außenwand oben und unten einen Auflage aus Restmaterial kleben. Dafür ist aber kein Platz, denn da kommt die Platte mit den Schaltern für das Licht hin. Also habe ich die perfekt ausgelaserten Nasen der 6mm Platte abgesägt.

    Abgesägte 6mm Platte

    Die Platte für die Schalter für das Licht wird nun auch mit dem Rahmen verklebt. So liegen die Schaltknöpfe tief in dem Gebäude und sind so vor Beschädigung geschützt.

    Platte für Schalter

    An die bereits verklebte Gebäudeecke wird nun das Dach angepasst. Beim Gravieren der Steine hat sich die Außenmauer etwas verbogen, diese muß zum Verkleben gerade gezogen werden.

    Gebäudeecke mit Dach

    Ein paar Klebestreifen halten Wand und Dach in Position, so kann diese Baugruppe verklebt werden.

    Gebäudeecke mit Dach verklebt

    Zum schnellen Verkleben der Teile verwende ich Dichlormethan. Mit einem feinen Pinsel läßt sich das wasserdünne Dichlormethan an die Kontaktstelle bringen, in die es durch die Kapilarwirkung sofort hineingezogen wird. Die beiden Teile verkleben augenblicklich, ein nachträgliches verschieben ist damit nicht möglich.

    Klebstoff Dichlormethan

    An den später nicht sichtbaren Stellen verstärke ich die Klebestelle mit Acrifix, einem gefüllten Klebstoff aus der Tube. Das Dichlormethan enthält keinen Füllstoff und ist so nicht in der Lage Spalte zu füllen, oder Material aufzutragen. Dies geht mit dem Tubenkleber besser, dafür entsteht die Gefahr das die Klebestelle verschmiert.

    Tubenkleber Acrifix

    Die bislang größte Baugruppe mit 32cm Länge wird verklebt. Das ist die 6mm dicke Rückwand mit der Bodenplatte und der inneren Stützmauer. Die drei Teile werden durch die Verzapfung gut fixiert und mit Klebeband und Klemmen zum Verkleben in Position gehalten.

    Rückwand mit Boden verklebt

    Tags drauf ist der Acrylkleber durchgetrocknet, die Klebebänder werden abgezogen. Der Anbau macht schon einen kompletten Eindruck.

    verklebter Anbau

    Auch die Bodenplatte und die Rückwand ist gut durchgetrocknet, zum testen habe ich die Hallenfront mit dem Tor eingesteckt. Das hielt gleich so fest das ich das nicht wieder auseinander genommen habe. Hier sind die Teile allerdings noch nicht verklebt.

    Rückwand mit Boden und Front

    Damit die Hallenfront sauber ausgerichtet bleibt während der Klebstoff trockent sind auch hier ein paar Klebestreifen nötig.

    Hallenfront fixiert

    Auch der Anbau passt gut an Bodengruppe und Hallenfront, so langsam wir mein Fotokasten für das Gebäude zu klein.

    Halle mit Anbau

    Zeit das Gebäude mal auf seine spätere Position auf dem Modul zu platzieren. Gut, ein durchsichtiges Gebäude mit Hintergrund sieht komisch aus, aber es passt schon mal sehr gut. Der schwarze Strich auf dem Modul ist die Mittellinie des späteren Regelspurabsetzgleises.

    Halle mit Anbau auf dem Modul

    Nun werden Bodengruppe, Rückwand, Hallenfront und die Schalterplatte miteinander verklebt. Einigen Spannungen werden auch hierbei mit Klemmen und Klebeband zu Leibe gerückt und die Teile so ausgerichtet fixiert.

    Halle mit Anbau verklebt

    Für die beiden umlaufenden, verputzten Bänder habe ich aus einer 0,5mm PS Platte zwei Steifen geschnitten und diese mit Dichlormethan aufgeklebt.

    Halle mit Putzband

    Die Absattelungsanlage des Agl Woehrle

    Den Bau der Absattelungsanlage werde ich im Bereich "Technik" beschreiben. Zum einen weicht diese Anlage sehr von der bereits gebauten vollautomatischen Rollbockgrube ab, und zum anderen würde es den Bericht über den Bau des Moduls an dieser Stelle sprengen.

    Absattelungsanlage des Agl Woehrle

    Dennoch möchte ich sie hier nicht unerwähnt lassen. Sie bietet Platz für 4 Rollböcke also zwei aufgebockten, zweiachsigen Regelspurwagen und wird rein mechanisch betätigt. Der Bau erfolgt aus Acrylglas, Messing, Aluminium, und Anbauteilen aus Kunststoff. Die in der SbV erwähnten Gleissperren werden ebenfalls an der Absattelungsanlage angebracht und rein mechanisch betätigt.

    Geländegestaltung des Agl Woehrle

    Das Gelände rund um das Agl Woehrle stellt an die Ausgestaltung keine großen Ansprüche. Es ist auf dem Bild aus de 70er Jahren als flache Wiese mit einigen wenigen Büschen neben dem Gleis und einer Hecke als Einfriedung zum Firmengelände zu erkennen.

    Die Gestaltung ist also eher etwas für den Gras-o-maten als für die Baumschule.

    ...der Rest ist noch immer eine Baustelle